Orot Israel

Rabbi Dr. Yehuda Felix Modular Housing Fund

Share:

Rabbi Dr. Yehuda Felix, who founded Orot Israel College as well as Yeshivat Ohr Chaim and Ulpanat Orot in Toronto, has headed the College for decades.
Rav Felix

In appreciation of his hard work, in honor of his 80th birthday as well as in honor of the 40th anniversary year of Orot Israel College, Orot Israel College has decided to strengthen his blessed enterprise by establishing the Rabbi Dr. Yehuda Felix Modular Housing Fund.

Orot Israel College's Elkana campus has a student body of approximately 1,200  students yet offers residential facilities for only 100 single students. As well, six couples live in studio apartments in the "Cymberknopf Student Housing Building" and 50 married couples live in old, rundown caravans. These students are desperately waiting for a housing solution.

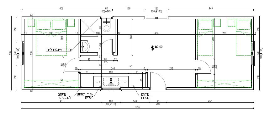
Through the Rabbi Dr. Yehuda Felix Modular Housing Fund, Orot Israel College plans to raise money to replace the old caravans enabling more students to live on campus in comfortable and convenient living quarters and at subsidized costs. The advantages of modular housing include: immediate, energy-efficient and environmentally friendly housing for young married couples, affordable rent, living in proximity to the College, and leading an active family life in an esthetic environment while pursuing their education. In each 44.4 square meter modular home there will be 2 bedrooms, a bathroom, a laundry corner, and a kitchen and living room area.

Image removed.

The expression of esteem and appreciation for Rabbi. Dr. Yehuda Felix is but a small measure of the honor he deserves for the untold efforts he has invested in establishing magnificent institutions of learning over so many years.

Religious Zionist communities in Israel and around the world face many challenges today, especially raising children who struggle to balance their Jewish and modern identities. It is of the utmost importance that we empower and train future educators who will stand before our children and grandchildren, with the skills to inspire them with Emunah, Jewish Identity and a love for the land of Israel.

Please partner with us to purchase new modular homes for Orot Israel College's Elkana campus. Young couples will reside there and reap the benefits of living on campus and having excellent early childhood day care service for their children, thus enabling them to dedicate their time to their studies.

 

Cost of 1 modular home: $60,000